Saltar al contingut Saltar a la navegació Informació de contacte

3.03.2.02 - Construir l'aparcament soterrat a l'edifici del projecte de La Hispània.

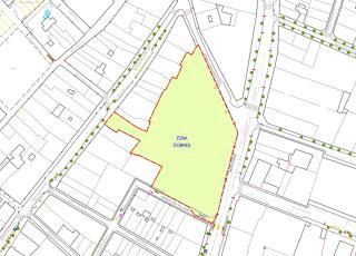
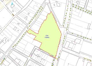
L'edifici Hispània, situat al barri Horts de Miró, comptarà amb un pàrquing soterrat municipal.

3.03.2.02 - Construir l'aparcament soterrat a l'edifici del projecte de La Hispània.
plànol obra la Hispània

Objectius de desenvolupament sostenible

Ciutats i comunitats sostenibles

Notes de premsa

Percentatge d'execució